• VENDITA APPARTAMENTI IN PICCOLO COMPLESSO DI NUOVISSIMA COSTRUZIONE - BUDONI

  • VENDITA APPARTAMENTI IN PICCOLO COMPLESSO DI NUOVISSIMA COSTRUZIONE - BUDONI
  • VENDITA APPARTAMENTI IN PICCOLO COMPLESSO DI NUOVISSIMA COSTRUZIONE - BUDONI
  • VENDITA APPARTAMENTI IN PICCOLO COMPLESSO DI NUOVISSIMA COSTRUZIONE - BUDONI
  • VENDITA APPARTAMENTI IN PICCOLO COMPLESSO DI NUOVISSIMA COSTRUZIONE - BUDONI
  • VENDITA APPARTAMENTI IN PICCOLO COMPLESSO DI NUOVISSIMA COSTRUZIONE - BUDONI
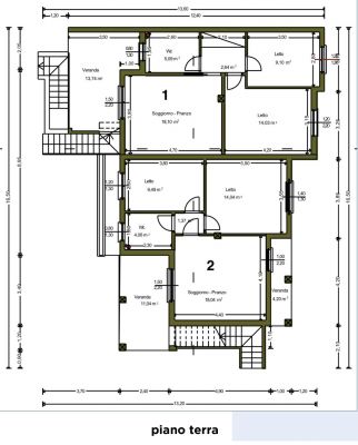
  • OTTIMA OCCASIONE!! Budoni nuovo appartamento facente parte di un piccolo corpo in costruzione di sole 4 unità indipendenti ubicato in Loc. Berruiles a metà strada sia da Budoni che da San Teodoro. L'appartamento è composto da soggiorno-cottura, camera matrimoniale, camera doppia, bagno, terrazza coperta e piccolo giardino privato. Predisposizione clima in tutti i vani e riserva idrica di emergenza. L'intervento sarà realizzato nel rispetto delle più recenti norme in materia di risparmio energetico. Chiamaci per informazioni: Cento Case S.r.l. via Gramsci 16 San Teodoro, tel. 0784.851070 - 335.1276156. www.centocasesardegna.com
    • EUR
  • Rispondi a: contatti@centocasesardegna.it
  • http://www.youtube.com/watch?v=Jn3no1qSEj0 Video:

Annunci simili

Appartamento di prestigio 200 MQ. A 400 metri dalla METRO Cornelia, con doppio ingresso,...

720.000.00

EUR

Rif.V018 Lecce centro a ridosso della zona San Lazzaro proponiamo in vendita incantevole...

250000

EUR

Mansarda di 40mq a pochi passi dal mare a Riccione, dispone di soggiorno con angolo...

110000

EUR

PIÙ VISITATI

Imperia On. - zona Spianata Immobiliare Luzzi vende prestigioso appartamento sito...

1100000

EUR

Chiavari (GE) - centro storico - Via Ravaschieri Stupendo attico nel pieno centro...

795000

EUR

Appartamento al primo piano composto da ingresso-corridoio, tinello con angolo cottura...

;

Commenti