• Vendesi Negozio Commerciale

  • Vendesi Negozio Commerciale
  • Vendesi Negozio Commerciale
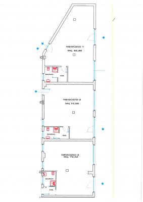
  • Gardenia Costruzioni propone in vendita a Dolzago in Via Corsica: Open Space di mq.72,50 con canna fumaria e a richiesta magazzino/deposito di mq.16,41, livello piano terra/piano interrato. Riscaldamento autonomo e nr. 1 bagno. Prezzo: trattative riservate Per ulteriori informazioni contattare lo 0392027817
    • EUR
  • (Utilizza il forn contatti sotto)

Annunci simili

Dimensioni H min. 4m., H max 6, 5m., Tutta in alluminio anodizzato, altissima qualità,...

28000

EUR

Dimensioni 10x20m, H min. 3m., H max 6m., Tutta in alluminio anodizzato, altissima...

16000

EUR

HOTEL IN JESOLO con circa 40 camere, ristorante, , bar. Ristrutturato di recente.......

2000000

EUR

PIÙ VISITATI

VENDO X TROPPO LAVORO...

;

L'impianto ha un 3 anni di vita e un anno di funzione: quasi nuova. capacità produttiva...

;

Cediamo in gestione in affitto d'azienda il ns. centro fitness, situato nel basso...

;
Formular de contact
  • Tua Email:
    Tuo Nome:
    Messagio:

Commenti